Sumnu

Sumnu

Makale Trakyanet

Makale Trakyanet

Sumnu Il Wikiwand

Sumnu Il Wikiwand

Sumnu Il Vikipedi

Sumnu Il Vikipedi

Rumeli Trakyanet

Rumeli Trakyanet

Makale Trakyanet

Makale Trakyanet

Makale Trakyanet

Bulgaristan Sumnu Osmanli Donemi Nde Askeri Us Olarak Kullanildi Devrialem Trt Avaz Youtube

Bulgaristan Sumnu Osmanli Donemi Nde Askeri Us Olarak Kullanildi Devrialem Trt Avaz Youtube

Makale Trakyanet

Makale Trakyanet

Bulevard Nikola Petkov 56 Knyazhevo Nerede Otobus Metro Tren Veya Troleybus Ile Nasil Gidilir Moovit

Bulevard Nikola Petkov 56 Knyazhevo Nerede Otobus Metro Tren Veya Troleybus Ile Nasil Gidilir Moovit

25 1989 Gocmenleri Ve Sorunlari By Bgsam Issuu

25 1989 Gocmenleri Ve Sorunlari By Bgsam Issuu

Sumnu Il Vikipedi

Sumnu Il Vikipedi

Maruf

Maruf

Bulturk Gazetesi 108 Sayi By Bulturk Gazetesi Issuu

Bulturk Gazetesi 108 Sayi By Bulturk Gazetesi Issuu

Spatial Distribution Of The Golden Jackals Involved In The Study Download Scientific Diagram

Spatial Distribution Of The Golden Jackals Involved In The Study Download Scientific Diagram

Spatial Distribution Of The Golden Jackals Involved In The Study Download Scientific Diagram

Spatial Distribution Of The Golden Jackals Involved In The Study Download Scientific Diagram

Makale Trakyanet

Makale Trakyanet

Complex Jitari Fiyatlari Fotograf Gozden Gecirmeye Adres Bulgaristan

Complex Jitari Fiyatlari Fotograf Gozden Gecirmeye Adres Bulgaristan

2

2

2

2

Https Www Jstor Org Stable 1778304

Https Www Jstor Org Stable 1778304

Https Www Jstor Org Stable 1778304

Https Www Jstor Org Stable 1778304

2

2

Spatial Distribution Of The Golden Jackals Involved In The Study Download Scientific Diagram

Spatial Distribution Of The Golden Jackals Involved In The Study Download Scientific Diagram

Boutique Complex Trakiets Fiyatlari Fotograf Gozden Gecirmeye Adres Bulgaristan

Boutique Complex Trakiets Fiyatlari Fotograf Gozden Gecirmeye Adres Bulgaristan

Https Www Jstor Org Stable 1778304

Https Www Jstor Org Stable 1778304

2

2

Pdf 1989 Yilinda Bulgaristan Dan Turk Zorunlu Gocunun 30 Yili Ayse Kayapinar Levent Kayapinar And Tc Okkes Narinc Academia Edu

Pdf 1989 Yilinda Bulgaristan Dan Turk Zorunlu Gocunun 30 Yili Ayse Kayapinar Levent Kayapinar And Tc Okkes Narinc Academia Edu

Https Www Jstor Org Stable 1778304

Https Www Jstor Org Stable 1778304

Bulgaristan Da Yuzde Yuz Turklerin Bulundugu Koyde Kurban Bayrami Heyecani Devrialem Trt Avaz Youtube

Bulgaristan Da Yuzde Yuz Turklerin Bulundugu Koyde Kurban Bayrami Heyecani Devrialem Trt Avaz Youtube

Https Www Corlu Bel Tr Upload Tr Dosya Yayinlar 1989 29122020105854 Pdf

Https Www Corlu Bel Tr Upload Tr Dosya Yayinlar 1989 29122020105854 Pdf

Sumnu Vikipedi

Sumnu Vikipedi

Https Www Jstor Org Stable 1778304

Https Www Jstor Org Stable 1778304

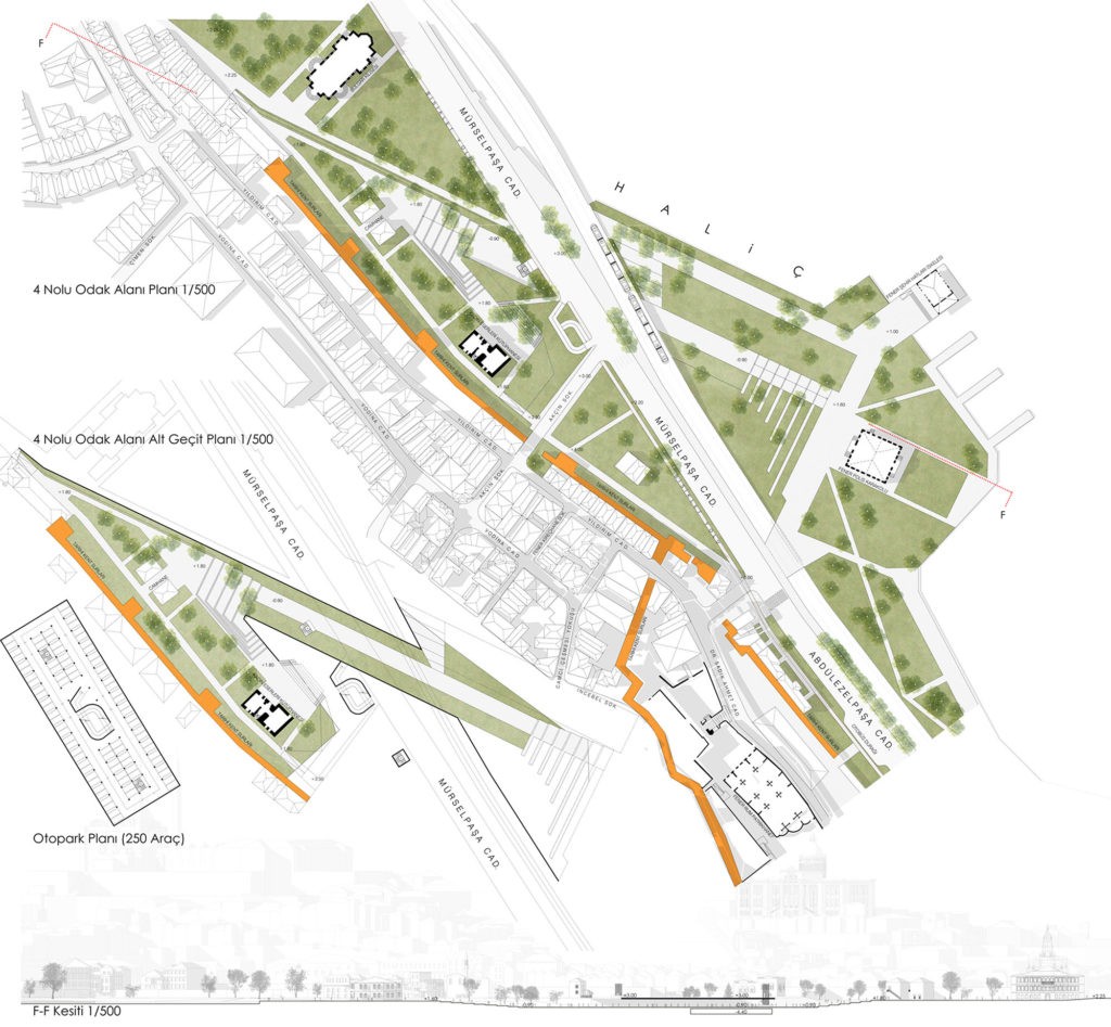
1 Mansiyon 2 Bolge Istanbul Senin Halic Kiyilari Tasarim Yarismasi Arkitera

1 Mansiyon 2 Bolge Istanbul Senin Halic Kiyilari Tasarim Yarismasi Arkitera

Https Www Jstor Org Stable 1778304

Https Www Jstor Org Stable 1778304

The Status Of Multiple Intestinal Helminth Infections Among Canids In Download Scientific Diagram

The Status Of Multiple Intestinal Helminth Infections Among Canids In Download Scientific Diagram

Dbarchitects Istanbul Senin Halic Kiyilari Tasarim Yarismasi 2 Bolge

Dbarchitects Istanbul Senin Halic Kiyilari Tasarim Yarismasi 2 Bolge

1 Mansiyon 1 Bolge Istanbul Senin Halic Kiyilari Tasarim Yarismasi Arkitera

1 Mansiyon 1 Bolge Istanbul Senin Halic Kiyilari Tasarim Yarismasi Arkitera

Hizmete Ozel Cem Prj Modelihtiyacanaliziraporu Proje Kodu Y401 G Revizyon Numarasi 01 Pdf Free Download

Hizmete Ozel Cem Prj Modelihtiyacanaliziraporu Proje Kodu Y401 G Revizyon Numarasi 01 Pdf Free Download

Halic Historical Istanbul Guide

Halic Historical Istanbul Guide

Hizmete Ozel Cem Prj Modelihtiyacanaliziraporu Proje Kodu Y401 G Revizyon Numarasi 01 Pdf Free Download

Hizmete Ozel Cem Prj Modelihtiyacanaliziraporu Proje Kodu Y401 G Revizyon Numarasi 01 Pdf Free Download

Dbarchitects Istanbul Senin Halic Kiyilari Tasarim Yarismasi 2 Bolge

Dbarchitects Istanbul Senin Halic Kiyilari Tasarim Yarismasi 2 Bolge

Https Www Jstor Org Stable 1778304

Https Www Jstor Org Stable 1778304

1 Mansiyon 1 Bolge Istanbul Senin Halic Kiyilari Tasarim Yarismasi Arkitera

1 Mansiyon 1 Bolge Istanbul Senin Halic Kiyilari Tasarim Yarismasi Arkitera

Makale Trakyanet

Makale Trakyanet

Sumnu Il Vikipedi

Sumnu Il Vikipedi

19 20 Aralik 2014 Istanbul Kongre Merkezi Transist 2014 Bildiri Kitabi Pdf Ucretsiz Indirin

19 20 Aralik 2014 Istanbul Kongre Merkezi Transist 2014 Bildiri Kitabi Pdf Ucretsiz Indirin

A Female Angiostrongylus Vasorum Identified From Golden Jackal Download Scientific Diagram

A Female Angiostrongylus Vasorum Identified From Golden Jackal Download Scientific Diagram

Https Www Jstor Org Stable 1778304

Https Www Jstor Org Stable 1778304

Dbarchitects Istanbul Senin Halic Kiyilari Tasarim Yarismasi 2 Bolge

Dbarchitects Istanbul Senin Halic Kiyilari Tasarim Yarismasi 2 Bolge

Http Isamveri Org Pdfdrg D254400 2015 2015 Kocakaplansc Pdf

Http Isamveri Org Pdfdrg D254400 2015 2015 Kocakaplansc Pdf

Enbeler Koyu Tanitim Sitesi Tarihce

Enbeler Koyu Tanitim Sitesi Tarihce

Dbarchitects Istanbul Senin Halic Kiyilari Tasarim Yarismasi 2 Bolge

Dbarchitects Istanbul Senin Halic Kiyilari Tasarim Yarismasi 2 Bolge

Https Konkur Istanbul Wp Content Uploads 2020 10 Sartname Pdf

Https Konkur Istanbul Wp Content Uploads 2020 10 Sartname Pdf

Hizmete Ozel Cem Prj Modelihtiyacanaliziraporu Proje Kodu Y401 G Revizyon Numarasi 01 Pdf Free Download

Hizmete Ozel Cem Prj Modelihtiyacanaliziraporu Proje Kodu Y401 G Revizyon Numarasi 01 Pdf Free Download

1 Mansiyon 2 Bolge Istanbul Senin Halic Kiyilari Tasarim Yarismasi Arkitera

1 Mansiyon 2 Bolge Istanbul Senin Halic Kiyilari Tasarim Yarismasi Arkitera

Makale Trakyanet

Makale Trakyanet

Https Www Corlu Bel Tr Upload Tr Dosya Yayinlar 1989 29122020105854 Pdf

Https Www Corlu Bel Tr Upload Tr Dosya Yayinlar 1989 29122020105854 Pdf

Aes E Library Complete Journal Volume 42 Issue 12

Aes E Library Complete Journal Volume 42 Issue 12

1910 Census

1910 Census

Hizmete Ozel Cem Prj Modelihtiyacanaliziraporu Proje Kodu Y401 G Revizyon Numarasi 01 Pdf Free Download

Hizmete Ozel Cem Prj Modelihtiyacanaliziraporu Proje Kodu Y401 G Revizyon Numarasi 01 Pdf Free Download

Halic In Kiyisi Cibali Fener Balat Istanbulwalkingtour

Halic In Kiyisi Cibali Fener Balat Istanbulwalkingtour

Dbarchitects Istanbul Senin Halic Kiyilari Tasarim Yarismasi 2 Bolge

Dbarchitects Istanbul Senin Halic Kiyilari Tasarim Yarismasi 2 Bolge

Http Isamveri Org Pdfdrg D254400 2015 2015 Kocakaplansc Pdf

Http Isamveri Org Pdfdrg D254400 2015 2015 Kocakaplansc Pdf

Hammer 5 By Fahriye Ayaz Issuu

Hammer 5 By Fahriye Ayaz Issuu

1 Mansiyon 2 Bolge Istanbul Senin Halic Kiyilari Tasarim Yarismasi Arkitera

1 Mansiyon 2 Bolge Istanbul Senin Halic Kiyilari Tasarim Yarismasi Arkitera

Halic Postasi 2017

Halic Postasi 2017

19 20 Aralik 2014 Istanbul Kongre Merkezi Transist 2014 Bildiri Kitabi Pdf Ucretsiz Indirin

19 20 Aralik 2014 Istanbul Kongre Merkezi Transist 2014 Bildiri Kitabi Pdf Ucretsiz Indirin

Akinci 944 Istanbul Altin Boynuz Halic 2

Akinci 944 Istanbul Altin Boynuz Halic 2

1 Mansiyon 1 Bolge Istanbul Senin Halic Kiyilari Tasarim Yarismasi Arkitera

1 Mansiyon 1 Bolge Istanbul Senin Halic Kiyilari Tasarim Yarismasi Arkitera

Dbarchitects Istanbul Senin Halic Kiyilari Tasarim Yarismasi 2 Bolge

Dbarchitects Istanbul Senin Halic Kiyilari Tasarim Yarismasi 2 Bolge

Http Www Public Library Uk Dailyebook Soldiers 20of 20the 20great 20war 20volume 201 20 1920 Pdf

Http Www Public Library Uk Dailyebook Soldiers 20of 20the 20great 20war 20volume 201 20 1920 Pdf

19 20 Aralik 2014 Istanbul Kongre Merkezi Transist 2014 Bildiri Kitabi Pdf Ucretsiz Indirin

19 20 Aralik 2014 Istanbul Kongre Merkezi Transist 2014 Bildiri Kitabi Pdf Ucretsiz Indirin

Http Isamveri Org Pdfdrg D254400 2015 2015 Kocakaplansc Pdf

Http Isamveri Org Pdfdrg D254400 2015 2015 Kocakaplansc Pdf

Http Www Lettere Uniroma1 It Sites Default Files 477 Marcantonio Pdf

Http Www Lettere Uniroma1 It Sites Default Files 477 Marcantonio Pdf

Pdf Isolation And Identification Of Free Living Amoebae From Tap Water In Sivas Turkey

Pdf Isolation And Identification Of Free Living Amoebae From Tap Water In Sivas Turkey

Hammer Buyuk Osmanli Tarihi 5 Cilt

Hammer Buyuk Osmanli Tarihi 5 Cilt

Https Konkur Istanbul Wp Content Uploads 2020 10 Sartname Pdf

Https Konkur Istanbul Wp Content Uploads 2020 10 Sartname Pdf

Https Core Ac Uk Download Pdf 38302461 Pdf

Https Core Ac Uk Download Pdf 38302461 Pdf

Makale Trakyanet

Makale Trakyanet

Aqua Azur Hotel Aziz Konstantin Ve Elena Guncel 2021 Fiyatlari

Aqua Azur Hotel Aziz Konstantin Ve Elena Guncel 2021 Fiyatlari

Https Yesil Istanbul Halic Downloads Sartname Pdf

Https Yesil Istanbul Halic Downloads Sartname Pdf

Sirius Beach Hotel Spa Varna Hotels Com

Sirius Beach Hotel Spa Varna Hotels Com

Hizmete Ozel Cem Prj Modelihtiyacanaliziraporu Proje Kodu Y401 G Revizyon Numarasi 01 Pdf Free Download

Hizmete Ozel Cem Prj Modelihtiyacanaliziraporu Proje Kodu Y401 G Revizyon Numarasi 01 Pdf Free Download

Dbarchitects Istanbul Senin Halic Kiyilari Tasarim Yarismasi 2 Bolge

Dbarchitects Istanbul Senin Halic Kiyilari Tasarim Yarismasi 2 Bolge

1 Mansiyon 1 Bolge Istanbul Senin Halic Kiyilari Tasarim Yarismasi Arkitera

1 Mansiyon 1 Bolge Istanbul Senin Halic Kiyilari Tasarim Yarismasi Arkitera

Rumeli Trakyanet

Rumeli Trakyanet

Yeni Sabah Kasim 1940 Tam Metin

Yeni Sabah Kasim 1940 Tam Metin

Untitled

Untitled

Http Isamveri Org Pdfdrg D254400 2015 2015 Kocakaplansc Pdf

Http Isamveri Org Pdfdrg D254400 2015 2015 Kocakaplansc Pdf

Tarihte Usul Zeki Velidi Togan

Tarihte Usul Zeki Velidi Togan

Hotel Bombay International

Hotel Bombay International

Halic Postasi 2017

Halic Postasi 2017

Complex Jitari Fiyatlari Fotograf Gozden Gecirmeye Adres Bulgaristan

Complex Jitari Fiyatlari Fotograf Gozden Gecirmeye Adres Bulgaristan

Https Konkur Istanbul Wp Content Uploads 2020 10 Sartname Pdf

Https Konkur Istanbul Wp Content Uploads 2020 10 Sartname Pdf

Efsane Mavi Halic Yari Maratonu

Efsane Mavi Halic Yari Maratonu

Psw Txt Id 5c136cfb2bc7d

Psw Txt Id 5c136cfb2bc7d

Https Yesil Istanbul Halic Downloads Sartname Pdf

Https Yesil Istanbul Halic Downloads Sartname Pdf

Anis Press Abebooks

Anis Press Abebooks

Hizmete Ozel Cem Prj Modelihtiyacanaliziraporu Proje Kodu Y401 G Revizyon Numarasi 01 Pdf Free Download

Hizmete Ozel Cem Prj Modelihtiyacanaliziraporu Proje Kodu Y401 G Revizyon Numarasi 01 Pdf Free Download

Source : pinterest.com